Добро пожаловать на http://vipplan.ru

Випплан Луховицы - это тысячи проектов домов в нашем каталоге!

Вы всегда сможете найти для себя проект дома вашей мечты! Даже если этого не случилось, мы готовы в любую минуту предложить проект индивидуального дома.

Забыли пароль?
Вы еще не регистрировались?

Перейдите по ссылке ниже на страницу регистрации.

Регистрация...

Внимание!!!

В проектную документацию могут быть внесены изменения любой сложности, в соответствии в Вашими пожеланиями!

Полезные статьи

Выбор проекта дома в Луховицах. Типовой или индивидуальный?

Строительство дома начинается с выбора проекта. От него будет зависит удобство, комфорт и функциональность Вашего будущего дома. Какой проект выбрать? В каталоге проектов домов VIPplan Луховицы предоставлен огромный выбор проектов на любой вкус и кошелек. В итоге выбор сводится к покупке типового проекта дома или заказа индивидуального проекта. Для упращения задачи, расскажем о каждом варианте по отдельности...

Комбинированные дома

Посмотрите, насколько далеко шагнула архитектура за последние десятилетия. Сколько изменилось в облике современных городов. А задумывались ли наши родители, о том что они увидят необыкновенные небоскребы и элитные многоквартирные дома, чьи фасады напоминают обруганную капиталистическую действительность. У людей появилась возможность построить дом за городом и в тишине на природе, реализовать любые дизайнерские фантазии. Те, кто может позволить себе частный дом, не ограничены финансами. Для многих частный дом – это показатель их материального благополучия, поэтому никто из них не хочет испол...

Проекты домов и коттеджей > Каталог проектов домов > Проект дома с подвалом Vg1038

Проект дома с подвалом Vg1038

Проект дома с подвалом
Зарегистрируйтесь

Проект № Vg1038


Техническое описание
Общая площадь: 166.04 м2
Жилая площадь: 78.13 м2
Высота здания: 8.45 м
Размеры дома: 12.18м×14.78м
Кол-во комнат: 5
Цокольный этаж: нет
Гараж: нет
Мансарда: нет

Kонструкция
Фундамент: Ленточный монолитный ж/б
Перекрытия: Сборные плиты перекрытия
Материал стен: Газобетон

Архитектурный раздел
Конструктивный раздел
АР+КР - 56 000 (Со скидкой 20%)
Проект индивидуального одноэтажного жилого дома с подвалом с размерами здания 12,18 x 14,78 м. Наружная отделка здания – облицовочный кирпич. Фундамент – ленточный монолитный ж/б. Наружные стены – из газобетонных блоков, утеплителя с воздушным зазором и отделкой облицовочным кирпичом. Внутренние стены – из газобетонных блоков. Перегородки – из газобетонных блоков. Пол подвала – пол грунту. Пол 1-го этажа – пол по сборным плитам перекрытия (над подвалом) и пол по грунту. Межэтажное перекрытие – сборные плиты перекрытия. Чердачное перекрытие – деревянные балки. Крыша – двускатная. Кровля – металлочерепица. Окна – металлопластиковые.
Генплан застройки участка / Паспорт проекта 7000 руб / 10000 руб
Инженерный раздел (полный) 83000 руб
Смета на строительство 41500 руб
Теплотехнический расчет материалов стен Бесплатно
Стоимость проекта со незначительнми изменениями 65850 руб
Стоимость проекта со средними изменениями* 78300 руб
Стоимость проекта со значительными изменениями** 81600 руб

План цокольного этажа


Спортзал — 29,31 м2
С/у — 6,40 м2
Помещение — 5,04 м2

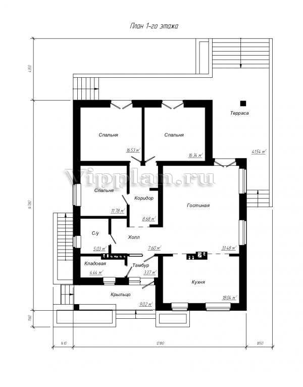
План первого этажа


Тамбур — 3,37 м2
Холл — 7,60 м2
Кладовая — 4,44 м2
С/у — 5,03 м2
Коридор — 8,68 м2
Спальня — 11,78 м2
Спальня — 16,53 м2
Спальня — 16,34 м2
Гостиная — 33,48 м2
Кухня — 18,04 м2
Проект дома с подвалом Проект дома с подвалом Проект дома с подвалом Проект дома с подвалом

Модификации проектов

Внесение изменений и привязка к участку строительства

В любой из проектов от компании VIPplan - Луховицы по вашему желанию могут быть внесены изменения в материалы стен, материалы наружной отделки дома, а также будет произведена адаптация проекта под конкретный регион строительства (с учетом грунтов региона, геологических особенностей вашего участка и местных климатических условий) - БЕСПЛАТНО !!! (кроме проектов со скидкой и проектов наших партнеров).

Любой из проектов, размещенных на сайте luhovitsyi.vipplan.ru мы можем выполнить из требуемых вам строительных материалов: ячеистый бетон (газобетон, пеноблок), керамоблок, кирпич, шлакоблок, бетонный блок, дерево (брус, клееный брус), каркасная технология (деревянный каркас, металлокаркас (ЛСТК)).

Фасад дома и его наружную отделку так же возможно выполнить с применением различных облицовочных материалов: структурной штукатурки, (с утеплителем и без), сайдингом (пластиковый или металлосайдинг), фиброплитами, кирпича.

 
6 Избранные
проекты

Доставка проектов по России: Москва (Московская область), Санкт-Петербург (Ленинградская область), Краснодар, Ростов-на-Дону, Ставрополь, Сочи, Волгоград, Новосибирск, Белгород, Брянск, Воронеж, Саратов, Хабаровск, Астрахань, Нальчик, Владикавказ, Екатеринбург, Тюмень, Самара, Нижний Новгород, Казань, Пермь, Уфа, Челябинск, Красноярск, Ханты-Мансийск, Иркутск, Курган, Оренбург, Омск, Томск, Барнаул, Новокузнецк, Кемерово, Абакан, Чита, Якутск, Южно-Сахалинск, Петропавловск-Камчатский и страны ближнего зарубежья: Белоруссия, Украина, Казахстан