Добро пожаловать на http://vipplan.ru

Випплан Луховицы - это тысячи проектов домов в нашем каталоге!

Вы всегда сможете найти для себя проект дома вашей мечты! Даже если этого не случилось, мы готовы в любую минуту предложить проект индивидуального дома.

Забыли пароль?
Вы еще не регистрировались?

Перейдите по ссылке ниже на страницу регистрации.

Регистрация...

Внимание!!!

В проектную документацию могут быть внесены изменения любой сложности, в соответствии в Вашими пожеланиями!

Полезные статьи

Купить готовый проект дома или заказать индивидуальный?

Перед началом строительства дома возникает необходимость в проекте дома и тут встает вопрос: Купить готовый проект дома или заказать индивидуальный на заказ? Каждый из вариантов по своему хорош и имеет как свои плюсы так и минусы...

Проект дома

Строительство дома начинается с подготовительного этапа, основной частью которого является проект. Разработка дизайнерского проекта сопровождается оформлением документов после выбора участка....

Проекты домов и коттеджей > Каталог проектов домов > Проект современного экономичного коттеджа с мансардой Vg1076

Проект современного экономичного коттеджа с мансардой Vg1076

Проект современного экономичного коттеджа с мансардой
Зарегистрируйтесь

Проект № Vg1076


Техническое описание
Общая площадь: 229.2 м2
Жилая площадь: 119.7 м2
Высота здания: 9.4 м
Размеры дома: 16.72м×13.34м
Кол-во комнат: 5
Цокольный этаж: нет
Гараж: нет
Мансарда: есть

Kонструкция
Фундамент: Ленточный
Перекрытия: Сборные ж/б плиты

Архитектурный раздел
Конструктивный раздел
АР+КР - 64 000 (Со скидкой 20%)
Проект индивидуального одноэтажного жилого дома с мансардой с размерами здания 18,34 x 13,34 м. Наружная отделка здания – покраска блоков «Теплостен». Фундамент – ленточный монолитный ( под несущими стенами). Наружные стены –блоки «Теплостен». Внутренние стены - из керамзитобетонного блока.. Перегородки – ГКЛ на металлическом каркасе. Пол первого этажа - пол по грунту. Межэтажное перекрытие- сборные ж/б плиты. (по т.з) Крыша многоскатная. Кровля –битумная черепица. Окна — металлопластиковые
Генплан застройки участка / Паспорт проекта 7000 руб / 10000 руб
Инженерный раздел (полный) 114500 руб
Смета на строительство 57250 руб
Теплотехнический расчет материалов стен Бесплатно
Стоимость проекта со незначительнми изменениями 74250 руб
Стоимость проекта со средними изменениями* 91500 руб
Стоимость проекта со значительными изменениями** 96000 руб

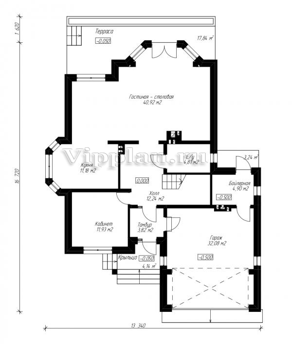
План первого этажа


Тамбур — 3,82 м2
Холл — 12,24 м2
С/у — 4,81 м2
Гостиная — 40,92 м2
Кухня — 11,18 м2
Кабинет — 11,93 м2
Бойлерная — 4,90 м2
Гараж — 32,08 м2

План мансардного этажа


Холл — 10,57 м2
С/у — 5,92 м2
Гардероб — 10,64 м2
Спальня — 10,90 м2
Гардероб — 11,90 м2
Спальня — 31,02 м2
Балкон — 4,81 м2
Проект современного экономичного коттеджа с мансардой Проект современного экономичного коттеджа с мансардой Проект современного экономичного коттеджа с мансардой Проект современного экономичного коттеджа с мансардой

Модификации проектов

Внесение изменений и привязка к участку строительства

В любой из проектов от компании VIPplan - Луховицы по вашему желанию могут быть внесены изменения в материалы стен, материалы наружной отделки дома, а также будет произведена адаптация проекта под конкретный регион строительства (с учетом грунтов региона, геологических особенностей вашего участка и местных климатических условий) - БЕСПЛАТНО !!! (кроме проектов со скидкой и проектов наших партнеров).

Любой из проектов, размещенных на сайте luhovitsyi.vipplan.ru мы можем выполнить из требуемых вам строительных материалов: ячеистый бетон (газобетон, пеноблок), керамоблок, кирпич, шлакоблок, бетонный блок, дерево (брус, клееный брус), каркасная технология (деревянный каркас, металлокаркас (ЛСТК)).

Фасад дома и его наружную отделку так же возможно выполнить с применением различных облицовочных материалов: структурной штукатурки, (с утеплителем и без), сайдингом (пластиковый или металлосайдинг), фиброплитами, кирпича.

 
6 Избранные
проекты

Доставка проектов по России: Москва (Московская область), Санкт-Петербург (Ленинградская область), Краснодар, Ростов-на-Дону, Ставрополь, Сочи, Волгоград, Новосибирск, Белгород, Брянск, Воронеж, Саратов, Хабаровск, Астрахань, Нальчик, Владикавказ, Екатеринбург, Тюмень, Самара, Нижний Новгород, Казань, Пермь, Уфа, Челябинск, Красноярск, Ханты-Мансийск, Иркутск, Курган, Оренбург, Омск, Томск, Барнаул, Новокузнецк, Кемерово, Абакан, Чита, Якутск, Южно-Сахалинск, Петропавловск-Камчатский и страны ближнего зарубежья: Белоруссия, Украина, Казахстан