Добро пожаловать на http://vipplan.ru

Випплан Луховицы - это тысячи проектов домов в нашем каталоге!

Вы всегда сможете найти для себя проект дома вашей мечты! Даже если этого не случилось, мы готовы в любую минуту предложить проект индивидуального дома.

Забыли пароль?
Вы еще не регистрировались?

Перейдите по ссылке ниже на страницу регистрации.

Регистрация...

Внимание!!!

В проектную документацию могут быть внесены изменения любой сложности, в соответствии в Вашими пожеланиями!

Полезные статьи

Типы и разновидности кровли

Кровля состоит из сплошного настила, стяжки и обрешетки, поддерживающих стропила и несколько слоев изоляции, призванных уберечь кровельное пространство от негативного воздействия пара и влаги....

Выбор проекта дома в Луховицах

Выбор проекта дома может завести семью в тупик. Прийти к одному конкретному мнению всем членам семьи очень сложно. Кому-то по душе, чтобы дом был большой и одноэтажный, с красивой террасой или верандой, кому-то хочется жить в двухэтажном доме с балконом. Детям, в основном, нравятся дома с мансардой....

Проекты домов и коттеджей > Каталог проектов домов > Дом с мансардой, террасой и чердаком Vg1092

Дом с мансардой, террасой и чердаком Vg1092

Дом с мансардой, террасой и чердаком
Зарегистрируйтесь

Проект № Vg1092


Техническое описание
Общая площадь: 259.09 м2
Жилая площадь: 174.66 м2
Высота здания: 8.97 м
Размеры дома: 14.6м×17.98м
Кол-во комнат: 8
Цокольный этаж: нет
Гараж: нет
Мансарда: нет

Kонструкция
Фундамент: Свайно-ростверковый
Перекрытия: Деревянные
Материал стен: Кирпич

Архитектурный раздел
Конструктивный раздел
АР+КР - 72 000 (Со скидкой 20%)
Проект индивидуального одноэтажного одноквартирного жилого дома с мансардой с размерами 14,60 x 17,98 м. Наружная отделка здания – облицовочный кирпич. Цоколь - камень. Фундамент – свайно-ростверковый (буронабивной). Наружные стены запроектированы из: кирпича, утеплителя и облицовочного кирпича. Внутренние стены - из кирпича. Перегородки - из гипсокартона. Перемычки - монолитные и сварные из профиля проката. Перекрытие межэтажное — по деревянным балком с использованием утеплителя в межбалочном пространстве. Пол 1 этажа - пол по грунту. Крыша - многоскатная. Материал кровли - металлочерепица. Окна - металлопластиковые, выполненные по индивидуальному заказу. Лестница выполняется по индивидуальному заказу.
Генплан застройки участка / Паспорт проекта 7000 руб / 10000 руб
Инженерный раздел (полный) 129500 руб
Смета на строительство 64750 руб
Теплотехнический расчет материалов стен Бесплатно
Стоимость проекта со незначительнми изменениями 83500 руб
Стоимость проекта со средними изменениями* 103000 руб
Стоимость проекта со значительными изменениями** 108100 руб

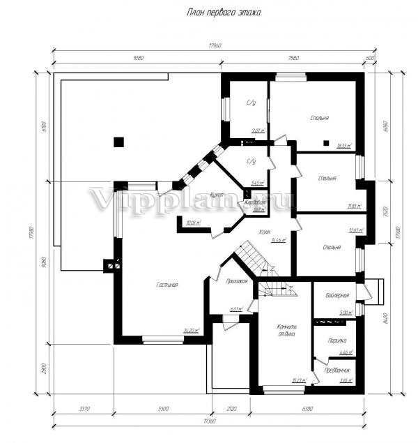
План первого этажа


Гостиная — 34,20 кв м
Кухня — 10,03 кв м
Холл — 14,46 кв м
Прихожая — 6,51 кв м
Кладовая — 1,67 кв м
С/у — 5,45 кв м
С/у — 7,07 кв м
Спальня — 18,33 кв м
Спальня — 11,83 кв м
Спальня — 12,65 кв м
Бойлерная — 5,00 кв м
Комната отдыха — 15,23 кв м
Парилка — 4,46 кв м
Предбанник — 3,65 кв м

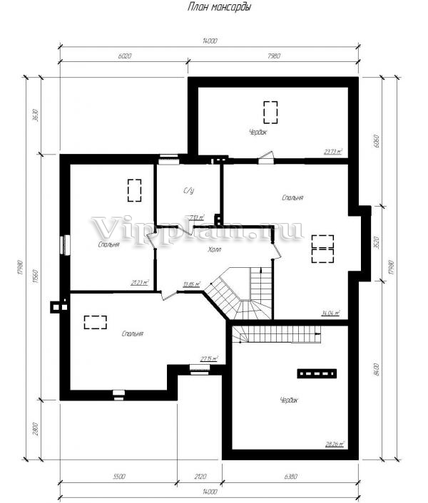
План мансардного этажа


Спальня — 21,23 кв м
С/у — 7,13 кв м
Спальня — 34,04 кв м
Холл — 13,85 кв м
Спальня — 27,15 кв м
Чердак — 23,73 кв м
Чердак — 28,26 кв м
Дом с мансардой, террасой и чердаком Дом с мансардой, террасой и чердаком Дом с мансардой, террасой и чердаком Дом с мансардой, террасой и чердаком

Модификации проектов

Внесение изменений и привязка к участку строительства

В любой из проектов от компании VIPplan - Луховицы по вашему желанию могут быть внесены изменения в материалы стен, материалы наружной отделки дома, а также будет произведена адаптация проекта под конкретный регион строительства (с учетом грунтов региона, геологических особенностей вашего участка и местных климатических условий) - БЕСПЛАТНО !!! (кроме проектов со скидкой и проектов наших партнеров).

Любой из проектов, размещенных на сайте luhovitsyi.vipplan.ru мы можем выполнить из требуемых вам строительных материалов: ячеистый бетон (газобетон, пеноблок), керамоблок, кирпич, шлакоблок, бетонный блок, дерево (брус, клееный брус), каркасная технология (деревянный каркас, металлокаркас (ЛСТК)).

Фасад дома и его наружную отделку так же возможно выполнить с применением различных облицовочных материалов: структурной штукатурки, (с утеплителем и без), сайдингом (пластиковый или металлосайдинг), фиброплитами, кирпича.

 
6 Избранные
проекты

Доставка проектов по России: Москва (Московская область), Санкт-Петербург (Ленинградская область), Краснодар, Ростов-на-Дону, Ставрополь, Сочи, Волгоград, Новосибирск, Белгород, Брянск, Воронеж, Саратов, Хабаровск, Астрахань, Нальчик, Владикавказ, Екатеринбург, Тюмень, Самара, Нижний Новгород, Казань, Пермь, Уфа, Челябинск, Красноярск, Ханты-Мансийск, Иркутск, Курган, Оренбург, Омск, Томск, Барнаул, Новокузнецк, Кемерово, Абакан, Чита, Якутск, Южно-Сахалинск, Петропавловск-Камчатский и страны ближнего зарубежья: Белоруссия, Украина, Казахстан