Добро пожаловать на http://vipplan.ru

Випплан Луховицы - это тысячи проектов домов в нашем каталоге!

Вы всегда сможете найти для себя проект дома вашей мечты! Даже если этого не случилось, мы готовы в любую минуту предложить проект индивидуального дома.

Забыли пароль?
Вы еще не регистрировались?

Перейдите по ссылке ниже на страницу регистрации.

Регистрация...

Внимание!!!

В проектную документацию могут быть внесены изменения любой сложности, в соответствии в Вашими пожеланиями!

Полезные статьи

Окна в доме

От хорошего стеклопакета зависит почти 50% теплостойкости всего дома. Ведь на проемы в окнах приходится до 45% тепловых потерь дома. Поэтому хорошие стеклопакеты не пропускают тепло из комнаты и должны противостоять проникновению ветра, влаги и холода с наружной стороны....

Выбор проекта дома (площадь, этажность - 1 или 2 этажа)

Для того что бы выбрать проект дома, предварительно необходимо определиться, какой будет площадь будущего дома (решение зависит от количества человек, планирующих постоянно в нем проживать), количество спален, санузлов и ванных комнат, компоновка дома, одноэтажный, масардный или двухэтажный дом (зависит от площади участка и предпочтений будущих хозяев) ...

Проекты домов и коттеджей > Каталог проектов домов > Современный двухэтажный особняк Vg1199

Современный двухэтажный особняк Vg1199

Современный двухэтажный особняк
Зарегистрируйтесь

Проект № Vg1199


Техническое описание
Общая площадь: 357.48 м2
Жилая площадь: 164.74 м2
Высота здания: 7.8 м
Размеры дома: 17.73м×25м
Кол-во комнат: 6
Цокольный этаж: нет
Гараж: нет
Мансарда: нет

Kонструкция
Фундамент: Монолитная плита
Перекрытия: Монолитные перекрытия
Материал стен: Газобетон

Архитектурный раздел
Конструктивный раздел
АР+КР - 92 000 (Со скидкой 20%)
Срок подготовки проекта – 7 рабочих дней Проект индивидуального двухэтажного жилого дома с размерами 17.73 x 25.00 м. Наружная отделка здания – декоративная фасадная штукатурка, клинкерная плитка, деревянные панели. Отделка цоколя – клинкерная плитка. Фундамент – монолитная ж/б плита. Наружные стены запроектированы из газобетонных блоков и утеплителя с отделкой декоративной фасадной штукатуркой, клинкерной плиткой, деревянными панелями. Внутренние стены – из газобетонных блоков. Перегородки – из газобетонных блоков. Пол 1-го этажа – пол по фундаментной плите. Перекрытия межэтажные – монолитные ж/б. Крыша - плоская. Окна - металлопластиковые, выполненные по индивидуальному заказу.
Генплан застройки участка / Паспорт проекта 7000 руб / 10000 руб
Инженерный раздел (полный) 178500 руб
Смета на строительство 89250 руб
Теплотехнический расчет материалов стен Бесплатно
Стоимость проекта со незначительнми изменениями 106050 руб
Стоимость проекта со средними изменениями* 132900 руб
Стоимость проекта со значительными изменениями** 140000 руб

План первого этажа


Тамбур — 5,00 м2
Холл — 16,25 м2
Кухня — 29,82 м2
Кладовая — 6,00 м2
Гостиная — 71,70 м2
Спальня — 19,44 м2
Гардероб — 5,95 м2
С/у — 6,30 м2
С/у — 7,00 м2
Кабинет — 11,90 м2
Крыльцо — 5,27 м2
Бойлерная — 7,80 м2
Кладовая — 4,00 м2
Гараж — 35,40 м2
Крыльцо — 14,21 м2

Современный двухэтажный особняк

Современный двухэтажный особняк

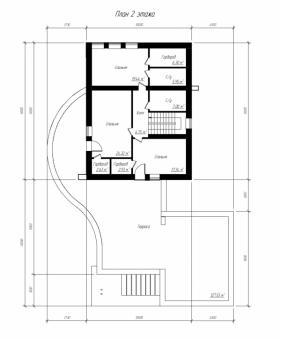
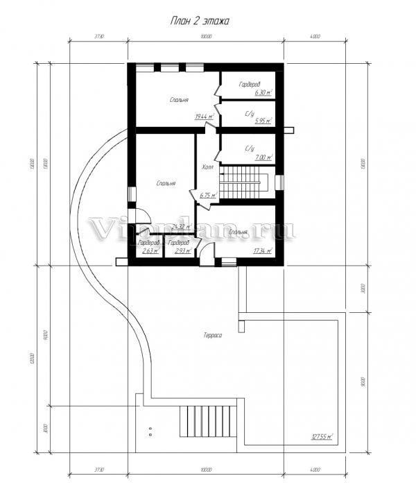
План второго этажа


Холл — 6,75 м2
С/у — 7,00 м2
Спальня — 17,34 м2
Гардероб — 2,93 м2
Спальня — 24,32 м2
Гардероб — 2,63 м2
Спальня — 19,44 м2
Гардероб — 6,30 м2
С/у — 5,95 м2
Современный двухэтажный особняк Современный двухэтажный особняк Современный двухэтажный особняк Современный двухэтажный особняк
Внесение изменений и привязка к участку строительства

В любой из проектов от компании VIPplan - Луховицы по вашему желанию могут быть внесены изменения в материалы стен, материалы наружной отделки дома, а также будет произведена адаптация проекта под конкретный регион строительства (с учетом грунтов региона, геологических особенностей вашего участка и местных климатических условий) - БЕСПЛАТНО !!! (кроме проектов со скидкой и проектов наших партнеров).

Любой из проектов, размещенных на сайте luhovitsyi.vipplan.ru мы можем выполнить из требуемых вам строительных материалов: ячеистый бетон (газобетон, пеноблок), керамоблок, кирпич, шлакоблок, бетонный блок, дерево (брус, клееный брус), каркасная технология (деревянный каркас, металлокаркас (ЛСТК)).

Фасад дома и его наружную отделку так же возможно выполнить с применением различных облицовочных материалов: структурной штукатурки, (с утеплителем и без), сайдингом (пластиковый или металлосайдинг), фиброплитами, кирпича.

 
6 Избранные
проекты

Доставка проектов по России: Москва (Московская область), Санкт-Петербург (Ленинградская область), Краснодар, Ростов-на-Дону, Ставрополь, Сочи, Волгоград, Новосибирск, Белгород, Брянск, Воронеж, Саратов, Хабаровск, Астрахань, Нальчик, Владикавказ, Екатеринбург, Тюмень, Самара, Нижний Новгород, Казань, Пермь, Уфа, Челябинск, Красноярск, Ханты-Мансийск, Иркутск, Курган, Оренбург, Омск, Томск, Барнаул, Новокузнецк, Кемерово, Абакан, Чита, Якутск, Южно-Сахалинск, Петропавловск-Камчатский и страны ближнего зарубежья: Белоруссия, Украина, Казахстан