Добро пожаловать на http://vipplan.ru

Випплан Луховицы - это тысячи проектов домов в нашем каталоге!

Вы всегда сможете найти для себя проект дома вашей мечты! Даже если этого не случилось, мы готовы в любую минуту предложить проект индивидуального дома.

Забыли пароль?
Вы еще не регистрировались?

Перейдите по ссылке ниже на страницу регистрации.

Регистрация...

Внимание!!!

В проектную документацию могут быть внесены изменения любой сложности, в соответствии в Вашими пожеланиями!

Полезные статьи

Укладка тротуарной плитки

При укладке тротуарной плитки, необходимо соблюдать технологию, во избежание, разрушения и расшатывания покрытия. Первый этап - подготовка основания.  ...

Выбор проекта дома в Луховицах. Типовой или индивидуальный?

Строительство дома начинается с выбора проекта. От него будет зависит удобство, комфорт и функциональность Вашего будущего дома. Какой проект выбрать? В каталоге проектов домов VIPplan Луховицы предоставлен огромный выбор проектов на любой вкус и кошелек. В итоге выбор сводится к покупке типового проекта дома или заказа индивидуального проекта. Для упращения задачи, расскажем о каждом варианте по отдельности...

Проекты домов и коттеджей > Каталог проектов домов > Уютный экономный дом с мансардой Vg1202

Уютный экономный дом с мансардой Vg1202

Уютный экономный дом с мансардой
Зарегистрируйтесь

Проект № Vg1202


Техническое описание
Общая площадь: 129.19 м2
Жилая площадь: 78.93 м2
Высота здания: 7.54 м
Размеры дома: 13.46м×7.66м
Кол-во комнат: 4
Цокольный этаж: нет
Гараж: нет
Мансарда: есть

Kонструкция
Фундамент: Монолитный ж/б
Перекрытия: Монолитные перекрытия
Материал стен: Газобетон

Архитектурный раздел
Конструктивный раздел
АР+КР - 52 000 (Со скидкой 20%)
Срок разработки проекта — 7 рабочих дней. Индивидуальный проект одноэтажного жилого дома с мансардой с размерами здания 13,46 x 7,66м. Наружная отделка здания – фасадная штукатурка. Отделка вентканалов и дымоходов - штукатурка. Цоколь - отделка камнем. Фундамент - монолитная ж/б плита (под всей площадью дома). Наружные стены: газобетонные блоки, утеплитель -экструдированный пенополистирол, фасадная штукатурка. Внутренние стены - газобетонные блоки. Перегородки: газобетонные блоки. Перемычки монолитные и сварные из профиля проката. Пол первого этажа - пол по плите. Межэтажное перекрытие - ж/б монолитное. Потолок мансардного этажа -по затяжкам стропильной системы. Крыша двускатная. Покрытие - металлочерепица. Лестница выполняется по индивидуальному заказу. Окна - металлопластиковые, выполненные по индивидуальному заказу.
Генплан застройки участка / Паспорт проекта 7000 руб / 10000 руб
Инженерный раздел (полный) 64500 руб
Смета на строительство 32250 руб
Теплотехнический расчет материалов стен Бесплатно
Стоимость проекта со незначительнми изменениями 61750 руб
Стоимость проекта со средними изменениями* 71500 руб
Стоимость проекта со значительными изменениями** 74000 руб

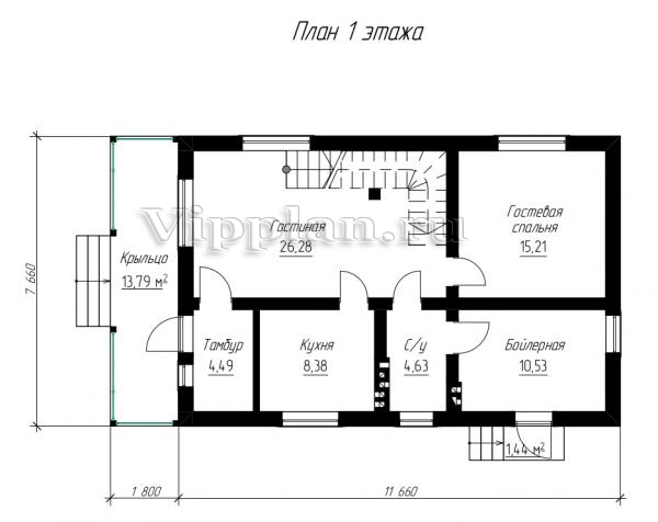
План первого этажа


Крыльцо — 13,79 м2
Тамбур — 4,49 м2
Гостиная — 26,28 м2
Кухня — 8,38 м2
С/у — 4,63 м2
Гостевая — 15,21 м2
Бойлерная — 10,53 м2

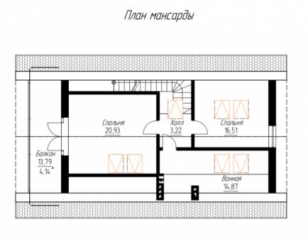
План мансардного этажа


Холл — 3,22 м2
Спальня — 16,51 м2
Ванная — 14,87 м2
Спальня — 20,93 м2
Балкон — 13,79 м2
Уютный экономный дом с мансардой Уютный экономный дом с мансардой Уютный экономный дом с мансардой Уютный экономный дом с мансардой
Внесение изменений и привязка к участку строительства

В любой из проектов от компании VIPplan - Луховицы по вашему желанию могут быть внесены изменения в материалы стен, материалы наружной отделки дома, а также будет произведена адаптация проекта под конкретный регион строительства (с учетом грунтов региона, геологических особенностей вашего участка и местных климатических условий) - БЕСПЛАТНО !!! (кроме проектов со скидкой и проектов наших партнеров).

Любой из проектов, размещенных на сайте luhovitsyi.vipplan.ru мы можем выполнить из требуемых вам строительных материалов: ячеистый бетон (газобетон, пеноблок), керамоблок, кирпич, шлакоблок, бетонный блок, дерево (брус, клееный брус), каркасная технология (деревянный каркас, металлокаркас (ЛСТК)).

Фасад дома и его наружную отделку так же возможно выполнить с применением различных облицовочных материалов: структурной штукатурки, (с утеплителем и без), сайдингом (пластиковый или металлосайдинг), фиброплитами, кирпича.

 
6 Избранные
проекты

Доставка проектов по России: Москва (Московская область), Санкт-Петербург (Ленинградская область), Краснодар, Ростов-на-Дону, Ставрополь, Сочи, Волгоград, Новосибирск, Белгород, Брянск, Воронеж, Саратов, Хабаровск, Астрахань, Нальчик, Владикавказ, Екатеринбург, Тюмень, Самара, Нижний Новгород, Казань, Пермь, Уфа, Челябинск, Красноярск, Ханты-Мансийск, Иркутск, Курган, Оренбург, Омск, Томск, Барнаул, Новокузнецк, Кемерово, Абакан, Чита, Якутск, Южно-Сахалинск, Петропавловск-Камчатский и страны ближнего зарубежья: Белоруссия, Украина, Казахстан