Добро пожаловать на http://vipplan.ru

Випплан Луховицы - это тысячи проектов домов в нашем каталоге!

Вы всегда сможете найти для себя проект дома вашей мечты! Даже если этого не случилось, мы готовы в любую минуту предложить проект индивидуального дома.

Забыли пароль?
Вы еще не регистрировались?

Перейдите по ссылке ниже на страницу регистрации.

Регистрация...

Внимание!!!

В проектную документацию могут быть внесены изменения любой сложности, в соответствии в Вашими пожеланиями!

Полезные статьи

Уклон кровли дома

Чтобы вода быстрее уходила с кровли Вашего дома, скатам необходимо придать уклон, который выражающийся в процентах или градусах и измеряющийся геодезическими инструментами. Уклон кровли обозначает угол наклона ската к горизонту. Чем больше уклон, тем круче крыша. У новомодных зданий наклон кровли делают не очень большим....

Выбор сайдинга

Прежде чем купить сайдинг, нужно определиться зачем он нужен: для защиты фасада от непогоды, для придания привлекательности внешнему виду дома или для утепления дома.Что же из себя представляет сайдинг? Сайдинг – это материал для облицовки фасада из компаунда. В данной статье мы поможем Вам определиться выбором сайдинга для отделки фасада дома...

Проекты домов и коттеджей > Каталог проектов домов > Проект узкого дома с мансардой, цоколем и гаражом Vg1287

Проект узкого дома с мансардой, цоколем и гаражом Vg1287

Проект узкого дома с мансардой, цоколем и гаражом
Зарегистрируйтесь

Проект № Vg1287


Техническое описание
Общая площадь: 209.21 м2
Жилая площадь: 74.75 м2
Высота здания: 9.43 м
Размеры дома: 18.37м×8.84м
Кол-во комнат: 4
Цокольный этаж: есть
Гараж: нет
Мансарда: есть

Kонструкция
Фундамент: Ленточный из блоков ФБС
Перекрытия: Ж/б плиты
Материал стен: Газобетон

Архитектурный раздел
Конструктивный раздел
АР+КР - 64 000 (Со скидкой 20%)
Проект индивидуального однотажного жилого дома с мансардой и подвалом с размерами здания 18,37 х 8,84 м. Наружная отделка здания – облицовочный кирпич Фундамент – ленточный из блоков ФБС (под несущими стенами). Наружные стены – пенобетонные блоки, утепление —экструдированный пенополистирол , отделка - облицовочный кирпич. Внутренние стены - пенобетонные блоки. Перегородки – из рядового кирпича . Пол подвала- пол по грунту. Межэтажное перекрытие – ж/б плиты. Крыша металлочерепица. Кровля – двускатая. Окна - металлопластиковые, выполненные по индивидуальному заказу.
Генплан застройки участка / Паспорт проекта 7000 руб / 10000 руб
Инженерный раздел (полный) 104500 руб
Смета на строительство 52250 руб
Теплотехнический расчет материалов стен Бесплатно
Стоимость проекта со незначительнми изменениями 74750 руб
Стоимость проекта со средними изменениями* 90500 руб
Стоимость проекта со значительными изменениями** 94600 руб

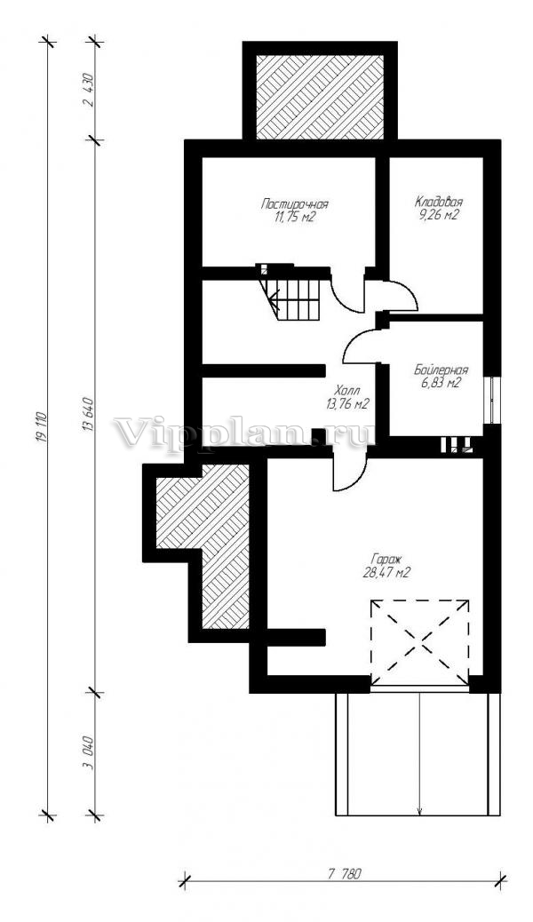
План цокольного этажа


Гараж — 28,47 кв м
Бойлерная — 6,83 кв м
Холл — 13,76 кв м
Постирочная — 11,75 кв м
Кладовая — 9,26 кв м

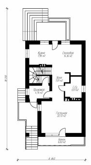
План первого этажа


Балкон — 6,60 кв м
Гостиная — 22,72 кв м
Прихожая — 4,76 кв м
Холл — 7,01 кв м
С/у — 5,51 кв м
Кухня — 7,96 кв м
Столовая — 14,36 кв м

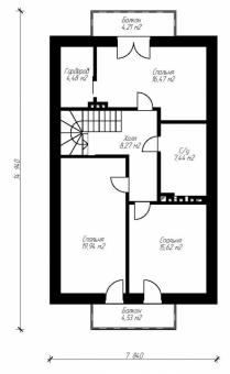
План мансардного этажа


Балкон — 4,21 кв м
Спальня — 16,47 кв м
С/у — 7,44 кв м
Холл — 8,27 кв м
Гардероб — 4,48 кв м
Спальня — 19,94 кв м
Спальня — 15,62 кв м
Балкон — 4,53 кв м
Проект узкого дома с мансардой, цоколем и гаражом Проект узкого дома с мансардой, цоколем и гаражом Проект узкого дома с мансардой, цоколем и гаражом Проект узкого дома с мансардой, цоколем и гаражом

Модификации проектов

Внесение изменений и привязка к участку строительства

В любой из проектов от компании VIPplan - Луховицы по вашему желанию могут быть внесены изменения в материалы стен, материалы наружной отделки дома, а также будет произведена адаптация проекта под конкретный регион строительства (с учетом грунтов региона, геологических особенностей вашего участка и местных климатических условий) - БЕСПЛАТНО !!! (кроме проектов со скидкой и проектов наших партнеров).

Любой из проектов, размещенных на сайте luhovitsyi.vipplan.ru мы можем выполнить из требуемых вам строительных материалов: ячеистый бетон (газобетон, пеноблок), керамоблок, кирпич, шлакоблок, бетонный блок, дерево (брус, клееный брус), каркасная технология (деревянный каркас, металлокаркас (ЛСТК)).

Фасад дома и его наружную отделку так же возможно выполнить с применением различных облицовочных материалов: структурной штукатурки, (с утеплителем и без), сайдингом (пластиковый или металлосайдинг), фиброплитами, кирпича.

 
6 Избранные
проекты

Доставка проектов по России: Москва (Московская область), Санкт-Петербург (Ленинградская область), Краснодар, Ростов-на-Дону, Ставрополь, Сочи, Волгоград, Новосибирск, Белгород, Брянск, Воронеж, Саратов, Хабаровск, Астрахань, Нальчик, Владикавказ, Екатеринбург, Тюмень, Самара, Нижний Новгород, Казань, Пермь, Уфа, Челябинск, Красноярск, Ханты-Мансийск, Иркутск, Курган, Оренбург, Омск, Томск, Барнаул, Новокузнецк, Кемерово, Абакан, Чита, Якутск, Южно-Сахалинск, Петропавловск-Камчатский и страны ближнего зарубежья: Белоруссия, Украина, Казахстан