Добро пожаловать на http://vipplan.ru

Випплан Луховицы - это тысячи проектов домов в нашем каталоге!

Вы всегда сможете найти для себя проект дома вашей мечты! Даже если этого не случилось, мы готовы в любую минуту предложить проект индивидуального дома.

Забыли пароль?
Вы еще не регистрировались?

Перейдите по ссылке ниже на страницу регистрации.

Регистрация...

Внимание!!!

В проектную документацию могут быть внесены изменения любой сложности, в соответствии в Вашими пожеланиями!

Полезные статьи

Где копать колодец?

Водоснабжение за городом - Луховицы всегда было проблематичным. При отсутствии центрального водоснабжения остается только один выход – выкопать колодец. Водоносный пласт есть не везде. Как же определить, где копать колодец?...

Приготовление раствора для наливного пола

Если вы хотите чтобы пол получился ровным, наливные полы – лучший вариант. Особое внимание следует уделить приготовлению раствора. А все потому, что после нанесения на цементную стяжку или бетонное основание внести коррективы или изменить что-либо уже не получится. Поэтому к замешиванию раствора стоит подходить очень внимательно....

Проекты домов и коттеджей > Каталог проектов домов > Вместительный одноэтажный дом с подвалом Vg1347

Вместительный одноэтажный дом с подвалом Vg1347

Вместительный одноэтажный дом с подвалом
Зарегистрируйтесь

Проект № Vg1347


Техническое описание
Общая площадь: 217.77 м2
Жилая площадь: 78.35 м2
Высота здания: 6.72 м
Размеры дома: 14.56м×14.36м
Кол-во комнат: 4
Цокольный этаж: нет
Гараж: нет
Мансарда: нет

Kонструкция
Фундамент: Ленточный
Перекрытия: Сборные ж/б плиты
Материал стен: Газобетон

Архитектурный раздел
Конструктивный раздел
Инженерный раздел
АР+КР - 64 000 (Со скидкой 20%)
АР+КР+ИР - 140 300 (Со скидкой 50%)
Проект индивидуального одноэтажного жилого дома с подвалом, размерами 14,56х 14,36 м. Наружная отделка здания – штукатурка. Цоколь – камень. Кровля – битумная черепица. Фундамент – ленточный из блоков ФБС. Наружные стены: газобетонные блоки, утеплитель минеральная вата, штукатурка. Внутренние стены и перегородки – газобетонные блоки. Отделка вентканалов и дымоходов – штукатурка. Перемычки – монолитныеи сварные из профиля проката. Пол первого этажа – пол по грунту. Подвальное перекрытие - сборные железобетонные плиты. Крыша многоскатная. Окна металлопластиковые, выполненные по индивидуальному заказу.
Генплан застройки участка / Паспорт проекта 7000 руб / 10000 руб
Инженерный раздел (полный) 76300 руб (109000 руб)
Смета на строительство 54500 руб
Теплотехнический расчет материалов стен Бесплатно
Стоимость проекта со незначительнми изменениями 74550 руб
Стоимость проекта со средними изменениями* 90900 руб
Стоимость проекта со значительными изменениями** 95300 руб

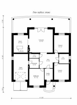
План цокольного этажа


Помещение 1 — 32 м2
Помещение 2 — 14,8 м2
Помещение 3 — 21,9 м2

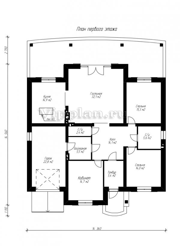
План первого этажа


Тамбур — 5,4 м2
Холл — 14,1 м2
Спальня — 15,3 м2
С/у — 5,6 м2
Спальня — 14,0 м2
Гостиная — 32,1 м2
С/у — 2,4 м2
Бойлерная — 5,5 м2
Кабинет — 14,7 м2
Кухня — 14,9 м2
Гараж — 22,8 м2
Вместительный одноэтажный дом с подвалом Вместительный одноэтажный дом с подвалом Вместительный одноэтажный дом с подвалом Вместительный одноэтажный дом с подвалом
Внесение изменений и привязка к участку строительства

В любой из проектов от компании VIPplan - Луховицы по вашему желанию могут быть внесены изменения в материалы стен, материалы наружной отделки дома, а также будет произведена адаптация проекта под конкретный регион строительства (с учетом грунтов региона, геологических особенностей вашего участка и местных климатических условий) - БЕСПЛАТНО !!! (кроме проектов со скидкой и проектов наших партнеров).

Любой из проектов, размещенных на сайте luhovitsyi.vipplan.ru мы можем выполнить из требуемых вам строительных материалов: ячеистый бетон (газобетон, пеноблок), керамоблок, кирпич, шлакоблок, бетонный блок, дерево (брус, клееный брус), каркасная технология (деревянный каркас, металлокаркас (ЛСТК)).

Фасад дома и его наружную отделку так же возможно выполнить с применением различных облицовочных материалов: структурной штукатурки, (с утеплителем и без), сайдингом (пластиковый или металлосайдинг), фиброплитами, кирпича.

 
6 Избранные
проекты

Доставка проектов по России: Москва (Московская область), Санкт-Петербург (Ленинградская область), Краснодар, Ростов-на-Дону, Ставрополь, Сочи, Волгоград, Новосибирск, Белгород, Брянск, Воронеж, Саратов, Хабаровск, Астрахань, Нальчик, Владикавказ, Екатеринбург, Тюмень, Самара, Нижний Новгород, Казань, Пермь, Уфа, Челябинск, Красноярск, Ханты-Мансийск, Иркутск, Курган, Оренбург, Омск, Томск, Барнаул, Новокузнецк, Кемерово, Абакан, Чита, Якутск, Южно-Сахалинск, Петропавловск-Камчатский и страны ближнего зарубежья: Белоруссия, Украина, Казахстан