Добро пожаловать на http://vipplan.ru

Випплан Луховицы - это тысячи проектов домов в нашем каталоге!

Вы всегда сможете найти для себя проект дома вашей мечты! Даже если этого не случилось, мы готовы в любую минуту предложить проект индивидуального дома.

Забыли пароль?
Вы еще не регистрировались?

Перейдите по ссылке ниже на страницу регистрации.

Регистрация...

Внимание!!!

В проектную документацию могут быть внесены изменения любой сложности, в соответствии в Вашими пожеланиями!

Полезные статьи

Купить готовый проект дома или заказать индивидуальный?

Перед началом строительства дома возникает необходимость в проекте дома и тут встает вопрос: Купить готовый проект дома или заказать индивидуальный на заказ? Каждый из вариантов по своему хорош и имеет как свои плюсы так и минусы...

Выбор проекта дома (площадь, этажность - 1 или 2 этажа)

Для того что бы выбрать проект дома, предварительно необходимо определиться, какой будет площадь будущего дома (решение зависит от количества человек, планирующих постоянно в нем проживать), количество спален, санузлов и ванных комнат, компоновка дома, одноэтажный, масардный или двухэтажный дом (зависит от площади участка и предпочтений будущих хозяев) ...

Проекты домов и коттеджей > Каталог проектов домов > Проект просторного двухэтажного дома с подвалом Vg2310

Проект просторного двухэтажного дома с подвалом Vg2310

Проект просторного двухэтажного дома с подвалом
Зарегистрируйтесь

Проект № Vg2310


Техническое описание
Общая площадь: 291.72 м2
Жилая площадь: 114.5 м2
Высота здания: 9.45 м
Размеры дома: 16.04м×13.04м
Кол-во комнат: 6
Цокольный этаж: нет
Гараж: нет
Мансарда: нет

Kонструкция
Фундамент: Ленточный
Перекрытия: Монолитные перекрытия, сборные
Материал стен: Газобетон

Архитектурный раздел
Конструктивный раздел
АР+КР - 72 000 (Со скидкой 20%)
Модель проекта индивидуального двухэтажного жилого дома с подвалом с размерами здания 16,04 x 13,04 м. Наружная отделка здания – штукатурка, облицовочный кирпич. Фундамент – ленточный, монолитный ж/б. Наружные стены – газобетон. Внутренние стены и перегородки -газобетон. Пол подвала и в гараже - пол по грунту. Межэтажное перекрытие — монолитное ж/б перекрытие, сборные ж/б перекрытия. Крыша многоскатная. Кровля – битумная черепица. Окна — металлопластиковые
Генплан застройки участка / Паспорт проекта 7000 руб / 10000 руб
Инженерный раздел (полный) 146000 руб
Смета на строительство 73000 руб
Теплотехнический расчет материалов стен Бесплатно
Стоимость проекта со незначительнми изменениями 82700 руб
Стоимость проекта со средними изменениями* 104600 руб
Стоимость проекта со значительными изменениями** 110400 руб

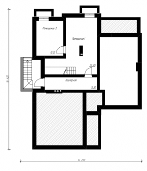
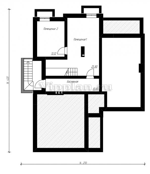
План цокольного этажа


Тамбур — 5,44 кв м
Холл — 5,03 кв м
Гостиная — 31,62 кв м
Кухня — 10,88 кв м
Спальня — 10,22 кв м
С/у — 3,37 кв м
Бойлерная — 6,95 кв м
Гараж — 35,52 кв м

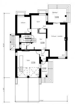
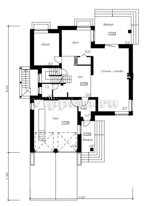
План первого этажа


Холл — 6,32 кв м
Спальня — 19,89 кв м
Спальня — 19,81 кв м
Спальня — 19,00 кв м
Ванная — 10,13 кв м
Спальня — 25,64 кв м
Ванная — 5,88 кв м
Гардероб — 3,77 кв м

Проект просторного двухэтажного дома с подвалом

Проект просторного двухэтажного дома с подвалом

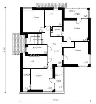
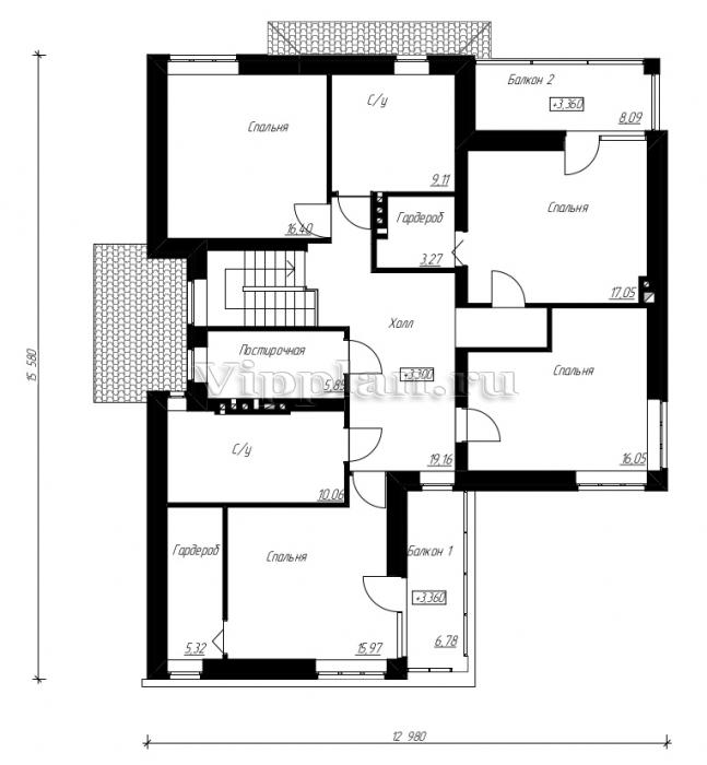
План второго этажа



Проект просторного двухэтажного дома с подвалом Проект просторного двухэтажного дома с подвалом Проект просторного двухэтажного дома с подвалом Проект просторного двухэтажного дома с подвалом

Модификации проектов

Внесение изменений и привязка к участку строительства

В любой из проектов от компании VIPplan - Луховицы по вашему желанию могут быть внесены изменения в материалы стен, материалы наружной отделки дома, а также будет произведена адаптация проекта под конкретный регион строительства (с учетом грунтов региона, геологических особенностей вашего участка и местных климатических условий) - БЕСПЛАТНО !!! (кроме проектов со скидкой и проектов наших партнеров).

Любой из проектов, размещенных на сайте luhovitsyi.vipplan.ru мы можем выполнить из требуемых вам строительных материалов: ячеистый бетон (газобетон, пеноблок), керамоблок, кирпич, шлакоблок, бетонный блок, дерево (брус, клееный брус), каркасная технология (деревянный каркас, металлокаркас (ЛСТК)).

Фасад дома и его наружную отделку так же возможно выполнить с применением различных облицовочных материалов: структурной штукатурки, (с утеплителем и без), сайдингом (пластиковый или металлосайдинг), фиброплитами, кирпича.

 
6 Избранные
проекты

Доставка проектов по России: Москва (Московская область), Санкт-Петербург (Ленинградская область), Краснодар, Ростов-на-Дону, Ставрополь, Сочи, Волгоград, Новосибирск, Белгород, Брянск, Воронеж, Саратов, Хабаровск, Астрахань, Нальчик, Владикавказ, Екатеринбург, Тюмень, Самара, Нижний Новгород, Казань, Пермь, Уфа, Челябинск, Красноярск, Ханты-Мансийск, Иркутск, Курган, Оренбург, Омск, Томск, Барнаул, Новокузнецк, Кемерово, Абакан, Чита, Якутск, Южно-Сахалинск, Петропавловск-Камчатский и страны ближнего зарубежья: Белоруссия, Украина, Казахстан