Добро пожаловать на http://vipplan.ru

Випплан Луховицы - это тысячи проектов домов в нашем каталоге!

Вы всегда сможете найти для себя проект дома вашей мечты! Даже если этого не случилось, мы готовы в любую минуту предложить проект индивидуального дома.

Забыли пароль?
Вы еще не регистрировались?

Перейдите по ссылке ниже на страницу регистрации.

Регистрация...

Внимание!!!

В проектную документацию могут быть внесены изменения любой сложности, в соответствии в Вашими пожеланиями!

Полезные статьи

Комбинированные дома

Посмотрите, насколько далеко шагнула архитектура за последние десятилетия. Сколько изменилось в облике современных городов. А задумывались ли наши родители, о том что они увидят необыкновенные небоскребы и элитные многоквартирные дома, чьи фасады напоминают обруганную капиталистическую действительность. У людей появилась возможность построить дом за городом и в тишине на природе, реализовать любые дизайнерские фантазии. Те, кто может позволить себе частный дом, не ограничены финансами. Для многих частный дом – это показатель их материального благополучия, поэтому никто из них не хочет испол...

Свайно-ростверковый, буронабивной фундамент

Для объединения свай в общий фундамент устанавливают бетонные ростверки (железобетонные плиты). Устройство ростверка зависит от расположения, вида свай и конструкции здания. Ростверки могут быть монолитными, сборными или сборно-монолитными, также возможны безростверковые решения. ...

Проекты домов и коттеджей > Каталог проектов домов > Проект уютного одноэтажного дома с мансардой Vg2366

Проект уютного одноэтажного дома с мансардой Vg2366

Проект уютного одноэтажного дома с мансардой
Зарегистрируйтесь

Проект № Vg2366


Техническое описание
Общая площадь: 180.63 м2
Жилая площадь: 95.28 м2
Высота здания: 8.8 м
Размеры дома: 11.79м×15.98м
Кол-во комнат: 5
Цокольный этаж: нет
Гараж: нет
Мансарда: есть

Kонструкция
Фундамент: Монолитная утепленная ж/б плита "шведская"
Перекрытия: По деревянным балкам
Материал стен: Каркас

Архитектурный раздел
Конструктивный раздел
Инженерный раздел
АР+КР - 60 000 (Со скидкой 20%)
АР+КР+ИР - 123 350 (Со скидкой 50%)
Модель проекта индивидуального одноэтажного жилого дома с мансардой с размерами здания 11,79 x 15,98 м. Наружная отделка здания – штукатурка. Фундамент – монолитная утепленная ж/б плита "шведская". Наружные стены – деревянный каркас. Состав стены: ГКЛВ, пароизоляция, утеплитель базальтовая вата между деревянными стойками, ветро/влагозащитная пленка, ЦСП, штукатурка. Внутренние стены – деревянный каркас. Состав стены: ГКЛВ, пароизоляция, утеплитель базальтовая вата между деревянными стойками, пароизоляция, ГКЛВ. Перегородки - ГКЛ на металлическом каркасе. Пол 1 этажа - пол по монолитной ж/б плите. Перекрытие мансарды по деревянным балкам. Крыша двускатная. Кровля – Цементно-песчанная черепица. Окна — металлопластиковые.
Генплан застройки участка / Паспорт проекта 7000 руб / 10000 руб
Инженерный раздел (полный) 63350 руб (90500 руб)
Смета на строительство 45250 руб
Теплотехнический расчет материалов стен Бесплатно
Стоимость проекта со незначительнми изменениями 70450 руб
Стоимость проекта со средними изменениями* 84100 руб
Стоимость проекта со значительными изменениями** 87700 руб

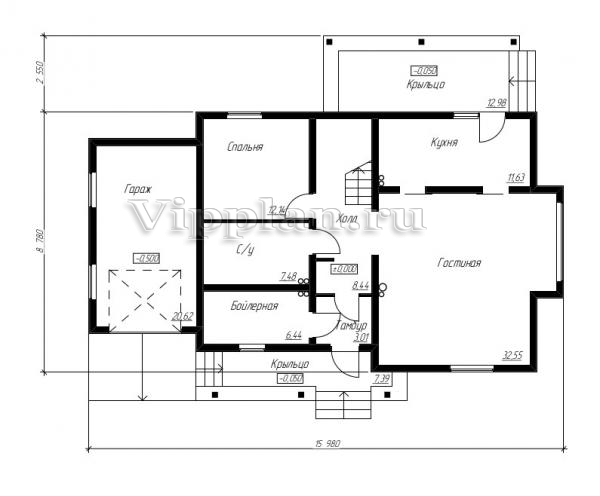
План первого этажа


Тамбур — 3,01 кв м
Холл — 8,44 кв м
Бойлерная — 6,44 кв м
С/у — 7,48 кв м
Гараж — 20,62 кв м
Спальня — 12,14 кв м
Кухня — 11,63 кв м
Гостиная — 32,55 кв м

Проект уютного одноэтажного дома с мансардой

Проект уютного одноэтажного дома с мансардой

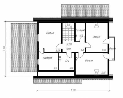
План второго этажа


Холл — 6,35 кв м
С/у — 6,94 кв м
Гардероб — 9,16 кв м
Спальня — 16,29 кв м
Гардероб — 4,35 кв м
Спальня — 16,45 кв м
Спальня — 17,85 кв м
Балкон — 3,1 кв м
Проект уютного одноэтажного дома с мансардой Проект уютного одноэтажного дома с мансардой Проект уютного одноэтажного дома с мансардой Проект уютного одноэтажного дома с мансардой

Модификации проектов

Внесение изменений и привязка к участку строительства

В любой из проектов от компании VIPplan - Луховицы по вашему желанию могут быть внесены изменения в материалы стен, материалы наружной отделки дома, а также будет произведена адаптация проекта под конкретный регион строительства (с учетом грунтов региона, геологических особенностей вашего участка и местных климатических условий) - БЕСПЛАТНО !!! (кроме проектов со скидкой и проектов наших партнеров).

Любой из проектов, размещенных на сайте luhovitsyi.vipplan.ru мы можем выполнить из требуемых вам строительных материалов: ячеистый бетон (газобетон, пеноблок), керамоблок, кирпич, шлакоблок, бетонный блок, дерево (брус, клееный брус), каркасная технология (деревянный каркас, металлокаркас (ЛСТК)).

Фасад дома и его наружную отделку так же возможно выполнить с применением различных облицовочных материалов: структурной штукатурки, (с утеплителем и без), сайдингом (пластиковый или металлосайдинг), фиброплитами, кирпича.

 
6 Избранные
проекты

Доставка проектов по России: Москва (Московская область), Санкт-Петербург (Ленинградская область), Краснодар, Ростов-на-Дону, Ставрополь, Сочи, Волгоград, Новосибирск, Белгород, Брянск, Воронеж, Саратов, Хабаровск, Астрахань, Нальчик, Владикавказ, Екатеринбург, Тюмень, Самара, Нижний Новгород, Казань, Пермь, Уфа, Челябинск, Красноярск, Ханты-Мансийск, Иркутск, Курган, Оренбург, Омск, Томск, Барнаул, Новокузнецк, Кемерово, Абакан, Чита, Якутск, Южно-Сахалинск, Петропавловск-Камчатский и страны ближнего зарубежья: Белоруссия, Украина, Казахстан