Добро пожаловать на http://vipplan.ru

Випплан Луховицы - это тысячи проектов домов в нашем каталоге!

Вы всегда сможете найти для себя проект дома вашей мечты! Даже если этого не случилось, мы готовы в любую минуту предложить проект индивидуального дома.

Забыли пароль?
Вы еще не регистрировались?

Перейдите по ссылке ниже на страницу регистрации.

Регистрация...

Внимание!!!

В проектную документацию могут быть внесены изменения любой сложности, в соответствии в Вашими пожеланиями!

Полезные статьи

Газобетонные перекрытия

Перекрытия из газобетонных плит, устанавливаются без применения подъемников и кранов. Строители устанавливают прочные и, что немаловажно, легкие газоблоки без помощи техники. Ячеистый бетон (пенобетон и газобетон) нашел широкое применение в домах из пенобетона и газобетона в Луховицах...

Плиты перекрытий

Железобетонные плиты очень широко используются в строительстве. При помощи них возводят как промышленные объекты так жилые. Железобетонные плиты перекрытия являются главной частью любого строительного объекта вне зависимости от этажности....

Проекты домов и коттеджей > Каталог проектов домов > Одноэтажный дом с гаражом и террасой Vg2447

Одноэтажный дом с гаражом и террасой Vg2447

Одноэтажный дом с гаражом и террасой
Зарегистрируйтесь

Проект № Vg2447


Техническое описание
Общая площадь: 126.48 м2
Жилая площадь: 57.02 м2
Высота здания: 6.8 м
Размеры дома: 15.5м×19.37м
Кол-во комнат: 4
Цокольный этаж: нет
Гараж: нет
Мансарда: нет

Kонструкция
Фундамент: ФБС
Перекрытия: Сборные ж/б плиты
Материал стен: Кирпич

Архитектурный раздел
Конструктивный раздел
АР+КР - 52 000 (Со скидкой 20%)
Проект одноэтажного жилого дома с размерами здания 15,50 x 19,37 м. Фундамент - ФБС. Наружные стены - забутовочный кирпич,технологический зазор и отделка облицовочным кирпичом. Внутренние стены: забутовочный кирпич. Перегородки - забутовочный кирпич. Пол этажа - пол по сборным ж/б плитам перекрытия. Перекрытие чердачное - сборные ж/б плиты перекрытия. Крыша - многоскатная. Кровля - металлочерепица. Окна - металлопластиковые.
Генплан застройки участка / Паспорт проекта 7000 руб / 10000 руб
Инженерный раздел (полный) 63000 руб
Смета на строительство 31500 руб
Теплотехнический расчет материалов стен Бесплатно
Стоимость проекта со незначительнми изменениями 61850 руб
Стоимость проекта со средними изменениями* 71300 руб
Стоимость проекта со значительными изменениями** 73800 руб

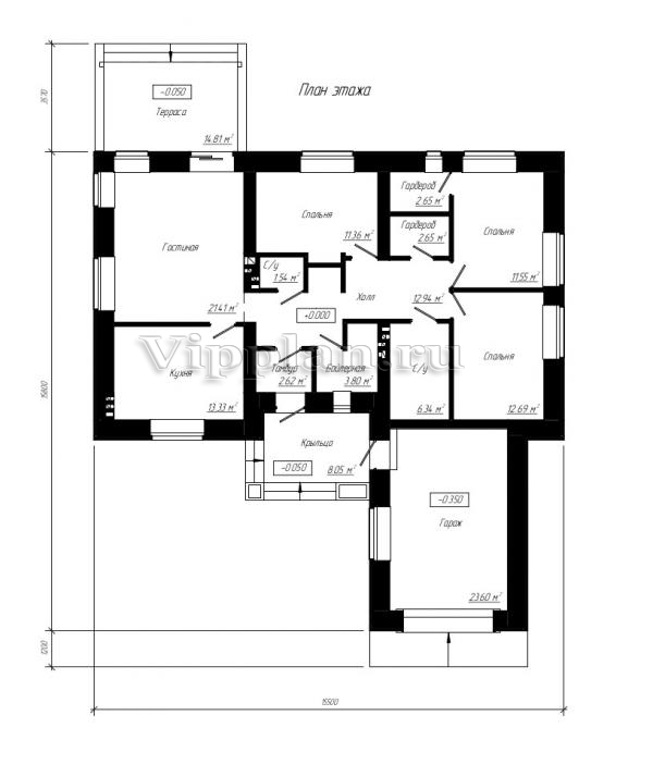
План первого этажа


Тамбур - 2,62 кв м
Холл - 12,94 кв м
Кухня - 13,33 кв м
Гостиная - 21,41 кв м
Спальня - 11,36 кв м
С/у - 1,54 кв м
Гардероб - 2,65 кв м
Гардероб - 2,65 кв м
Спальня - 11,55 кв м
Спальня - 12,69 кв м
С/у - 6,34 кв м
Бойлерная - 3,80 кв м
Гараж - 23,60 кв м
Одноэтажный дом с гаражом и террасой Одноэтажный дом с гаражом и террасой Одноэтажный дом с гаражом и террасой Одноэтажный дом с гаражом и террасой
Внесение изменений и привязка к участку строительства

В любой из проектов от компании VIPplan - Луховицы по вашему желанию могут быть внесены изменения в материалы стен, материалы наружной отделки дома, а также будет произведена адаптация проекта под конкретный регион строительства (с учетом грунтов региона, геологических особенностей вашего участка и местных климатических условий) - БЕСПЛАТНО !!! (кроме проектов со скидкой и проектов наших партнеров).

Любой из проектов, размещенных на сайте luhovitsyi.vipplan.ru мы можем выполнить из требуемых вам строительных материалов: ячеистый бетон (газобетон, пеноблок), керамоблок, кирпич, шлакоблок, бетонный блок, дерево (брус, клееный брус), каркасная технология (деревянный каркас, металлокаркас (ЛСТК)).

Фасад дома и его наружную отделку так же возможно выполнить с применением различных облицовочных материалов: структурной штукатурки, (с утеплителем и без), сайдингом (пластиковый или металлосайдинг), фиброплитами, кирпича.

 
6 Избранные
проекты

Доставка проектов по России: Москва (Московская область), Санкт-Петербург (Ленинградская область), Краснодар, Ростов-на-Дону, Ставрополь, Сочи, Волгоград, Новосибирск, Белгород, Брянск, Воронеж, Саратов, Хабаровск, Астрахань, Нальчик, Владикавказ, Екатеринбург, Тюмень, Самара, Нижний Новгород, Казань, Пермь, Уфа, Челябинск, Красноярск, Ханты-Мансийск, Иркутск, Курган, Оренбург, Омск, Томск, Барнаул, Новокузнецк, Кемерово, Абакан, Чита, Якутск, Южно-Сахалинск, Петропавловск-Камчатский и страны ближнего зарубежья: Белоруссия, Украина, Казахстан