Добро пожаловать на http://vipplan.ru

Випплан Луховицы - это тысячи проектов домов в нашем каталоге!

Вы всегда сможете найти для себя проект дома вашей мечты! Даже если этого не случилось, мы готовы в любую минуту предложить проект индивидуального дома.

Забыли пароль?
Вы еще не регистрировались?

Перейдите по ссылке ниже на страницу регистрации.

Регистрация...

Внимание!!!

В проектную документацию могут быть внесены изменения любой сложности, в соответствии в Вашими пожеланиями!

Полезные статьи

Выбор сайдинга

Прежде чем купить сайдинг, нужно определиться зачем он нужен: для защиты фасада от непогоды, для придания привлекательности внешнему виду дома или для утепления дома.Что же из себя представляет сайдинг? Сайдинг – это материал для облицовки фасада из компаунда. В данной статье мы поможем Вам определиться выбором сайдинга для отделки фасада дома...

Дом это прекрасное вложение

Современный рынок недвижимости диктует свои правила. Цены на землю и недвижимость в Луховицах постоянно растут и вынуждают по-другому смотреть на покупку собственного дома. Не только со стороны получения удобного, благоустроенного жилья, но и со стороны капитализации и инвестировании своих средств...

Проекты домов и коттеджей > Каталог проектов домов > Двухэтажный дом с гаражом, террасой и балконом Vg966

Двухэтажный дом с гаражом, террасой и балконом Vg966

Двухэтажный дом с гаражом, террасой и балконом
Зарегистрируйтесь

Проект № Vg966


Техническое описание
Общая площадь: 218.01 м2
Жилая площадь: 111.5 м2
Высота здания: 9.96 м
Размеры дома: 16.84м×11.97м
Кол-во комнат: 6
Цокольный этаж: нет
Гараж: нет
Мансарда: нет

Kонструкция
Фундамент: ленточный монолитный
Перекрытия: монолитные ж/б
Материал стен: Газобетон

Архитектурный раздел
Конструктивный раздел
АР+КР - 64 000 (Со скидкой 20%)
Проект индивидуального двухэтажного одноквартирного жилого дома с размерами 16,84x11,97 м. Наружная отделка здания – декоративная штукатурка и клинкерная плитка. Цоколь - клинкерная плитка. Фундамент – ленточный монолитный. Наружные стены запроектированы из: газобетонных блоков, утеплителем и декоративной штукатурки. Внутренние стены и перегородки - из газобетонных блоков. Перемычки - монолитные и сварные из профиля проката. Перекрытия межэтажные – монолитное ж/б. Пол 1 этажа - пол по грунту. Крыша - многоскатная. Материал кровли - металлочерепица. Окна - металлопластиковые, выполненные по индивидуальному заказу. Лестница выполняется по индивидуальному заказу.
Генплан застройки участка / Паспорт проекта 7000 руб / 10000 руб
Инженерный раздел (полный) 109000 руб
Смета на строительство 54500 руб
Теплотехнический расчет материалов стен Бесплатно
Стоимость проекта со незначительнми изменениями 74550 руб
Стоимость проекта со средними изменениями* 90900 руб
Стоимость проекта со значительными изменениями** 95300 руб

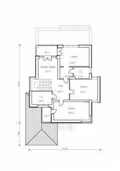
План первого этажа


Кабинет - 17,68 кв м
Гостиная - 27,66 кв м
Холл - 17,60 кв м
Кухня - 8,58 кв м
Столовая - 15,12 кв м
Бойлерная - 4,79 кв м
Кладовая - 2,31 кв м
Прихожая - 4,62 кв м
Гараж - 18,67 кв м
Кладовая - 2,44 кв м

Двухэтажный дом с гаражом, террасой и балконом

Двухэтажный дом с гаражом, террасой и балконом

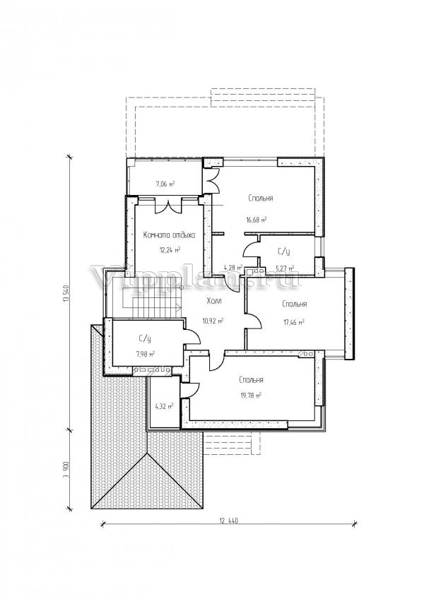
План второго этажа


Спальня - 19,78 кв м
Балкон - 4,32 кв м
С/у - 7,98 кв м
Холл - 10,92 кв м
Спальня - 17,46 кв м
С/у - 5,27 кв м
Коридор - 4,28 кв м
Спальня - 16,68 кв м
Комната отдыха - 12,24 кв м
Балкон - 7,06 кв м
Двухэтажный дом с гаражом, террасой и балконом Двухэтажный дом с гаражом, террасой и балконом Двухэтажный дом с гаражом, террасой и балконом Двухэтажный дом с гаражом, террасой и балконом

Модификации проектов

Внесение изменений и привязка к участку строительства

В любой из проектов от компании VIPplan - Луховицы по вашему желанию могут быть внесены изменения в материалы стен, материалы наружной отделки дома, а также будет произведена адаптация проекта под конкретный регион строительства (с учетом грунтов региона, геологических особенностей вашего участка и местных климатических условий) - БЕСПЛАТНО !!! (кроме проектов со скидкой и проектов наших партнеров).

Любой из проектов, размещенных на сайте luhovitsyi.vipplan.ru мы можем выполнить из требуемых вам строительных материалов: ячеистый бетон (газобетон, пеноблок), керамоблок, кирпич, шлакоблок, бетонный блок, дерево (брус, клееный брус), каркасная технология (деревянный каркас, металлокаркас (ЛСТК)).

Фасад дома и его наружную отделку так же возможно выполнить с применением различных облицовочных материалов: структурной штукатурки, (с утеплителем и без), сайдингом (пластиковый или металлосайдинг), фиброплитами, кирпича.

 
6 Избранные
проекты

Доставка проектов по России: Москва (Московская область), Санкт-Петербург (Ленинградская область), Краснодар, Ростов-на-Дону, Ставрополь, Сочи, Волгоград, Новосибирск, Белгород, Брянск, Воронеж, Саратов, Хабаровск, Астрахань, Нальчик, Владикавказ, Екатеринбург, Тюмень, Самара, Нижний Новгород, Казань, Пермь, Уфа, Челябинск, Красноярск, Ханты-Мансийск, Иркутск, Курган, Оренбург, Омск, Томск, Барнаул, Новокузнецк, Кемерово, Абакан, Чита, Якутск, Южно-Сахалинск, Петропавловск-Камчатский и страны ближнего зарубежья: Белоруссия, Украина, Казахстан